• Projects
  • Profile
  • Contact
  • News
Christian Hurttienne - Development / Architecture /  Construction
  • Projects
  • Profile
  • Contact
  • News

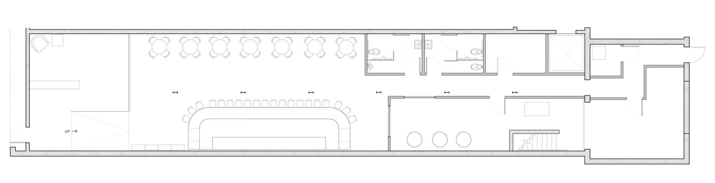
Detroit City Distillery

LOCATION: Detroit, MI
YEAR: 2014
STATUS: Completed

CLIENT: -
COST: Withheld

SERVICES: Schematic Design, Space Planning,
Construction Documents, Construction Administration

CHRISTIAN HURTTIENNE

DEVELOPMENT / ARCHITECTURE / CONSTRUCTION